Nowe osiedle przy ul. Kozienickiej ma zmienić tę część miasta. Inwestor chce skorzystać z lex deweloper
Podoba się wam ten projekt ? Chyba nie wszystkim, bo pojawienie się informacji, że w Radomiu ma powstać kolejne osiedle „apartamentowców” wzbudza liczne kontrowersje. Tym razem chodzi o teren przy ul. Kozienickiej. Osiedle miałoby powstać w ramach tzw. ustawy lex developer.
Jak już wielokrotnie wyjaśnialiśmy chodzi o prawo, które pozwala na budowę mieszkań na terenach, dla których nie ma miejscowych planów zagospodarowania przestrzennego, ale realizacja inwestycji jest uzasadniona względami społecznymi (brak mieszkań). Na budowę musi wyrazić wcześniej zgodę rada miejska.
Inwestor - spółka FUX z Pionek - złożyła - poprzez prezydenta - do rady wniosek o ustalenie warunków zabudowy. Nie był on jeszcze rozpatrywany przez radnych.
Duża inwestycja
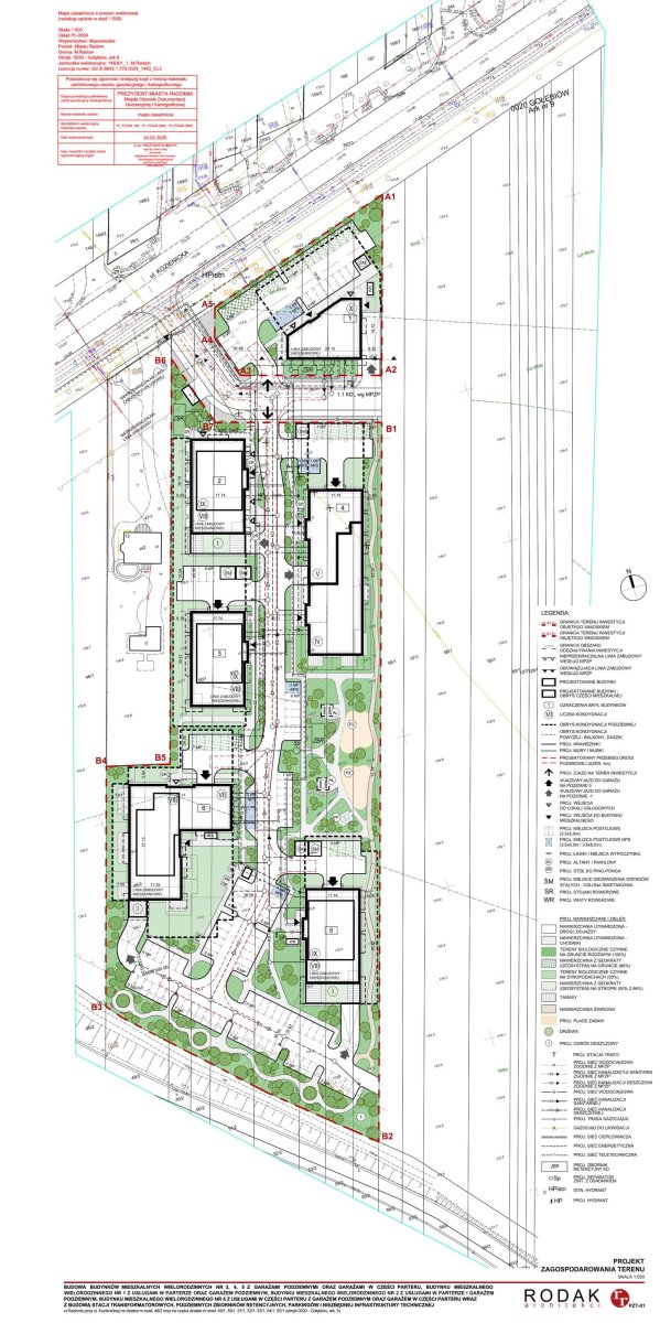
Jak wynika z dokumentów i wizualizacji przygotowanych przez inwestora, szykuje się duże przedsięwzięcie. Projekt zakłada bowiem realizację nowoczesnego osiedla składającego się z sześciu budynków wielorodzinnych, które znacząco zmienią charakter tej części miasta. Minimalna liczba planowanych mieszkań wynosi 264, a maksymalna - 314; przewidziano też wyodrębnienie części handlowo-usługowej (ma być siedem lokali usługowych).
Zgodnie z założeniami na osiedlu znajdą się garaże podziemne w trzech budynkach (1, 2, 6) oraz usytuowane w części parterowej z około 140 miejscami (bloki 3, 4 5), dwa place zabaw, wiaty i stojaki rowerowe, altany, stół do pingponga, nasadzone zostaną nowe drzewa i krzewy.
Projekt przewiduje stworzenie uporządkowanej, spójnej przestrzeni osiedlowej. Budynki rozmieszczone będą w sposób zapewniający dostęp do światła dziennego oraz odpowiednie odległości między obiektami. Całość ma tworzyć przyjazne środowisko do życia – zarówno dla rodzin, jak i osób szukających spokojniejszej alternatywy dla centrum miasta.
Duży nacisk położono na tereny zielone oraz przestrzenie wspólne, które mają sprzyjać rekreacji i integracji mieszkańców. W planach są również ciągi piesze oraz elementy małej architektury.
Wnioskodawcy zwracają uwagę, że lokalizacja osiedla zapewnia odpowiednią liczbę miejsc parkingowych, a układ drogowy będzie dostosowany do obsługi mieszkańców, którzy będą mieli dogodny dojazd do
Bożena Dobrzyńska
Wizualizacje i grafiki: inwestor















